
Déclaration préalable de travaux
Phase étude
Déclaration préalable de travaux
Phase étude
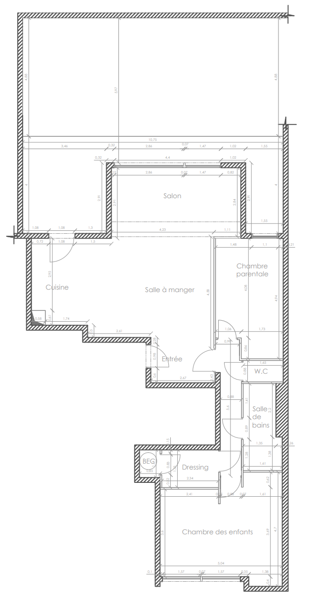
Pour ce projet j'ai accompagner les clients dans la rénovation de leur appartement de 120m²en rez-de jardin dans une copropriété.
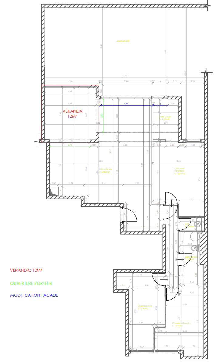
Le souhait était d’agrandir leur pièce de vie grâce à une véranda pour y intégrer la cuisine et agrandir la chambre parentale pour y intégrer une salle d’eau. Nous avons donc revu entièrement le plan de cet appartement afin de l’adapter au mode de vie de ces usagers.
Une extension par une véranda afin de gagner 12m² pour y intégrer la cuisine et permettre de gagner en luminosité dans cet appartement grâce à des ouvertures agrandies. Le plan de travail de la cuisine est prolongé côté terrasse pour y faire office de bar d’été.
La chambre des enfants devient évolutive grâce à un dressing qui à été supprimé pour agrandir le volume et récupérer une porte d’accès.
Avant : Un appartement récent classique en rez-de-jardin avec un extérieur aux nombreux recoins inutilisés.
Après : Un appartement très fonctionnel dirigé vers le jardin grâce à des ouvertures plus larges.
Style : Scandinave
Projet en collaboration avec Atelier Germain
Parution presse Marie Claire Maison: